
Structure béton – Dalle inclinée
Termine
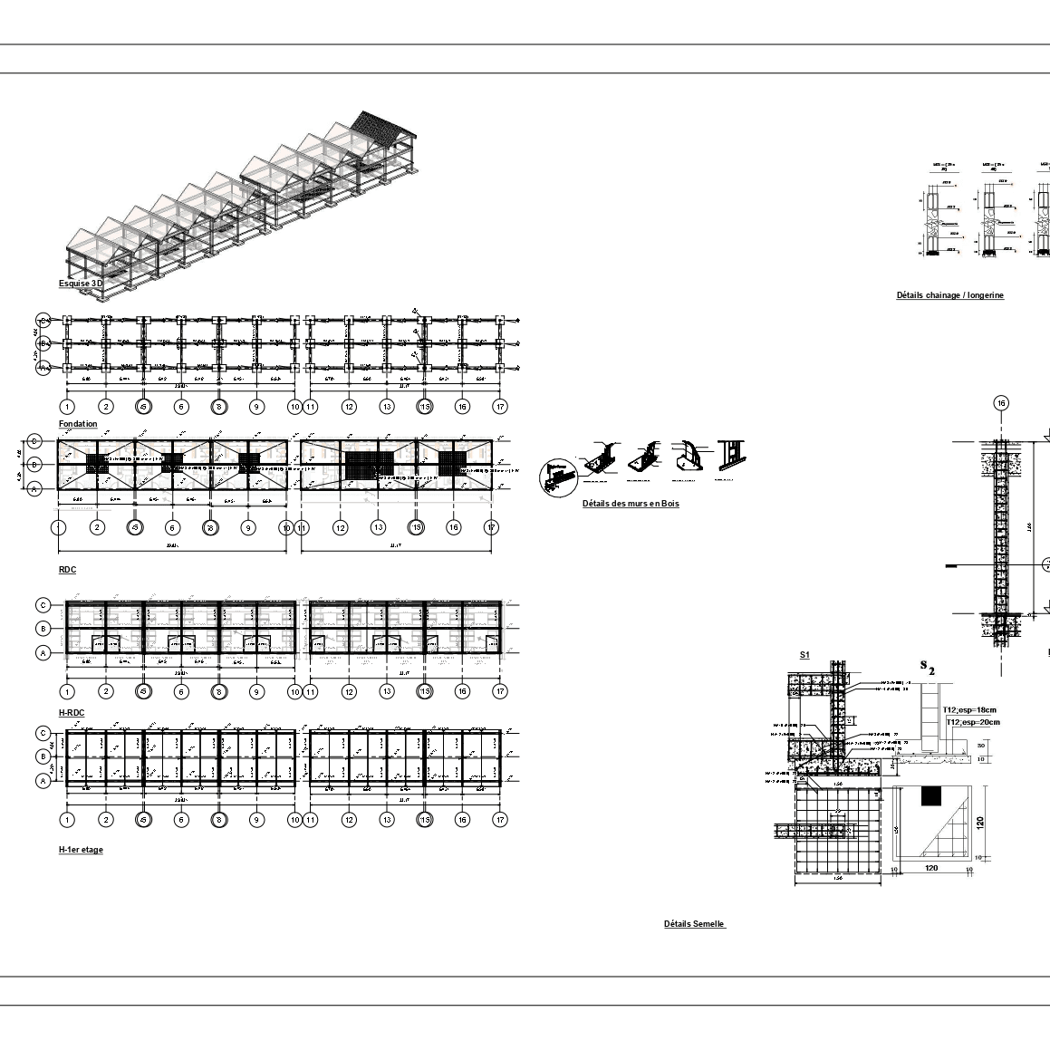
Ce projet présente une structure porteuse en béton armé, conçue pour un bâtiment d’hébergement en colonie de vacances. Elle se compose de poteaux rectangulaires, voiles de contreventement, et d’une dalle inclinée assurant à la fois la rigidité globale et l’évacuation naturelle des eaux. Le tout est modélisé avec un niveau de détail LOD 300, garanti
Intervenants du projet
Trouvez le meilleur taux pour votre projet
Simulez votre credit immobilier ou faites une demande pour recevoir une etude personnalisee de votre projet.